
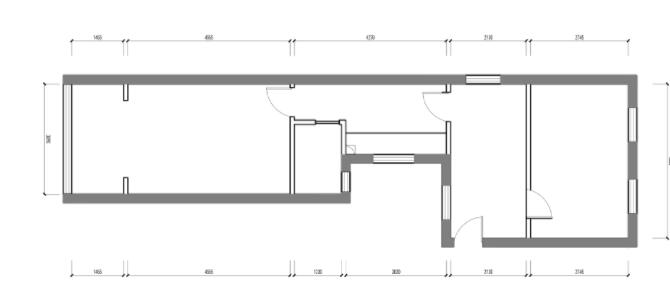
△原始户型信息户型设计要求户型面积:50㎡业主信息:90后,目前夫妻2人居住,孩子即将出生视觉要求:希望客餐厅这里看起来更大一些,目前感觉空间不够开阔,要有家庭聚会和儿童活动的区域厨房:感觉厨房不够用、希望是双开门冰箱增加储物洗手间:希望是宽敞一些,使用起来更加方便卧室:需要大量的收纳功能,需要有儿童单独的卧室和学习区域好了,了解完基本信息,面对这样的户型空间,应该怎样做呢?先来看常规分区图。

△常规分区图通过户型常规分区以及业主的需求,我们发现难点在于客餐厅、儿童房的布局设计,以及客厅活动空间的释放。接下来咱们看看两位同学给出的方案吧。王同学的2个设计方案:

△方案一

△方案二方案分析:这2个方案,整体分区布局一致。通过客厅的窗户对儿童房与客厅区域进行了划分,其中存在以下3个问题:1、首先,最大的问题就是厨房和餐厅区域,餐桌的摆放影响了卧室、卫生间的动线关系;2、其次,儿童房的私密性没有很好的保护;3、第三,缺少整体空间的收纳。张同学的2个设计方案:

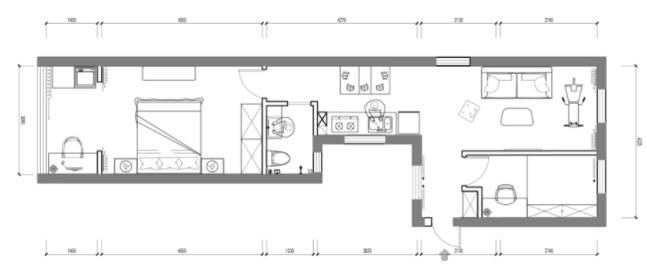
△方案三

△方案四方案分析:张同学的这2个方案,相较于王同学的方案有所进步。3个优点:1、设计出了单独的用餐区域;2、方案三缩小了主卧空间,合并阳台,整体下移,在主卧与卫生间之间释放出一部分空间设计儿童房,方便父母照顾儿童;3、方案三整体空间的动、静分离。2个问题:1、客厅的面积能否再大一些;2、空间分割能不能更通透。好了,基于两位同学提供的方案以及出现的问题,我们可以这样做!

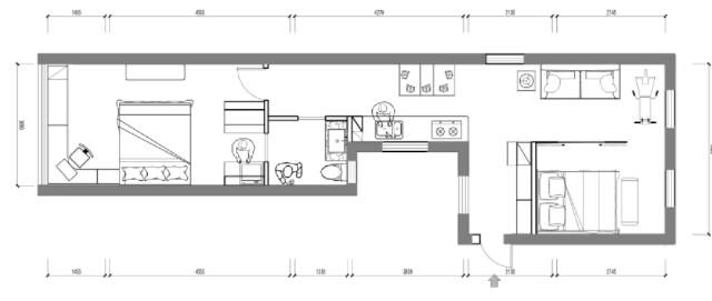
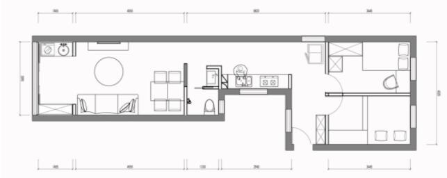
△方案五设计说明:1、入户右手边定制鞋柜,朝向客厅的空间做开放式收纳格,可放书籍以及其他用品,嵌置双开门冰箱,增加收纳;2、冰箱和餐桌将客餐厅为一体,餐桌区域也有效的利用了过道面积对面墙外置悬挂推拉门,做饭时可阻止油烟到客厅;3、 客厅空间,未来孩子的活动区域也变大,电视背景墙和厨房后的定制柜成一体,视觉上拉长空间通透感,厨房也增加了收纳,厨房加门,也保证了卧室空间的私密性,以及油烟对卧室的影响;4、 卫生间洗手盆外置,此区域外墙可做孩子学龄前的涂鸦墙;5、主卧空间去掉阳台空间,电视墙定制矮柜可办公、化妆,在保证卧室空间和卫浴空间后,增加出一个小卧室,书桌对面的墙体采用玻璃砖保证采光,孩子小时候可当收纳室,长大后可以休息、学习,距离主卧室也近,方便家长指导学习。优势:1、动静区分离,不干扰;2、加强收纳,空间整体显大气;3、客餐厅一体,空间得到释放。那咱们是不是还可以换一种思路呢?

△改动版分区图

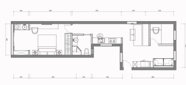
△方案六设计说明:优点:1、大胆的将客餐厅和卧室空间对调;2、 客餐厅阳台空间更加通透;3、 动静区分离;4、 活动空间变大;5、通过窗户进行两个卧室的分割;6、 两个卧室的面积比例也很平衡。缺点:1、两个卧室都是定制,不能按常规卧室布置。2、过道长,没有有效利用空间。好啦,今天的户型优化分享就到这了,这6种布局方案你最喜欢哪一个呢?版权声明 | 文章配图仅供学习参考,引用图片版权归属原作所有